
神奈川県真鶴町
所在地/神奈川県真鶴町
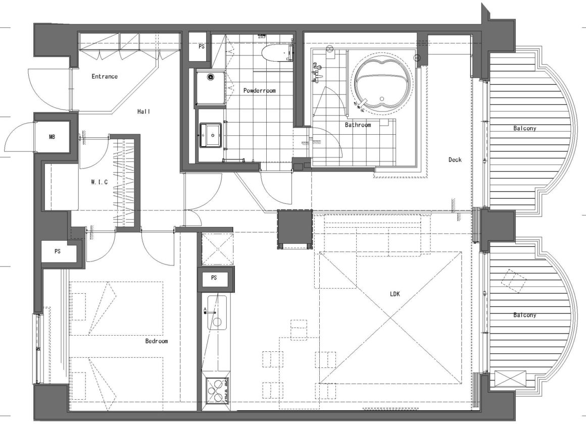
リノベーション面積/84.7 ㎡ 金額/1,425万(税別)
間取り/1LDK 築年数/30年 工期/2ヶ月
設計・施工/株式会社ユーロJスペース
家族構成/6人(大人 2人・子ども 4人)

■BUILDER’S NOTE(ビルダーズノート)
リビングに入った途端に海が一面に広がって見えるというロケーションに恵まれているマンション。以前は船をイメージして床のチークフローリングをはじめ壁から天井までを濃い色で空間を仕上げていましたが、奥様とお子様の為にナチュラルな明るい空間にリフォームをしました。

■リフォームのポイント
エントランス
玄関の床は既存を活かして、異なる素材をミックスしたホワイト系でコーディネート。奥行き感が出るように右側の壁はグレージュ色で塗装しました。

寝室
ベッドから正面に見える壁と、そこから繫がるように天井までをホワイトのエイジング塗装をした板張りに。周りの壁はリラックスができるように少しトーンを落としたグレーの塗装で仕上げました。以前は朝も暗かった寝室ですが、柔らかい光が心地よい素敵な空間になりました。

キッチン
カウンターや壁のタイルは既存の物を活かして、扉だけをインテリアのイメージに合わせて製作をしました。以前は重く感じた壁のタイルも、今回はアクセントカラーとして空間を引き締めるアイテムに変化しています。

バルコニー
バルコニーにもメンテナンスが不要な人工木材でデッキを作ったことにより、リビングと繋がったスペースになりました。

リビング&ダイニング
海から一日中日差しが差し込むリビング・ダイニング。
ホワイトの塗装を基調としながら、素材で温かみを表現。
床にはホワイトオイルで仕上げたオークの無垢フローリング、壁の所々には寝室にも使ったエイジング塗装の白い板張り、柱に貼った乱形の石が空間のアクセントになりました。
窓にはカーテンやブラインドを使わずに木製の可動式ルーバーの引き戸を付けたことにより、夏の強い日差しを自由に調節することが可能に。
アメリカ西海岸リゾートをイメージさせるような、海が似合う空間に仕上がりました。
リビングから1段上がった浴室前のデッキエリアには、皆で利用したくなるようなベンチスペースが。壁の板張りも含めてついつい座ってしまう居心地の良いスペースになりました。

窓にはカーテンやブラインドを使わずに木製の可動式ルーバーの引き戸を付けたことにより、夏の強い日差しを自由に調節することが可能に。
アメリカ西海岸リゾートをイメージさせるような、海が似合う空間に仕上がりました。
リビングから1段上がった浴室前のデッキエリアには、皆で利用したくなるようなベンチスペースが。壁の板張りも含めてついつい座ってしまう居心地の良いスペースになりました。



■ビフォーアフター
BEFORE


取材協力
株式会社ユーロJスペース
〒150-0012 東京都渋谷区広尾5-16-2 2F
0120-074-186
TEL: 03-5449-7185 FAX: 03-5449-1392







