閑静で自然に囲まれた高台の環境に建つ築50年の集合団地。古くなった室内をほぼスケルトン状態から配管を含めたフルリノベーションを敢行しました。RC構造の住宅であっても、あくまでも木と自然素材を主体に採用した「人に優しい空間」となりました。「木とともに暮らす」をテーマにしたキリガヤのリノベーションをご覧ください。

築50年の住まいが、生まれかわる︕ 新しい仕様はまさに新築︕
今回物件は約50年前の団地です。昔ながらの壁式構造で3部屋が畳、お風呂にはバランス釜、キッチンには瞬間湯沸かし器という仕様でした。そんな今回の物件が、このリノベーションをへてまるで新築のように⽣まれかわりました。
新築同様の水回りと表情豊かな無垢のフローリング。防音等級も取得して、壁も天井も下地から作り直しています。寒さ対策の断熱材もしっかり充填。
古いけど便利な⽴地を⽣かして、新しい姿によみがえりました。
DATA
所在地/神奈川県逗子市
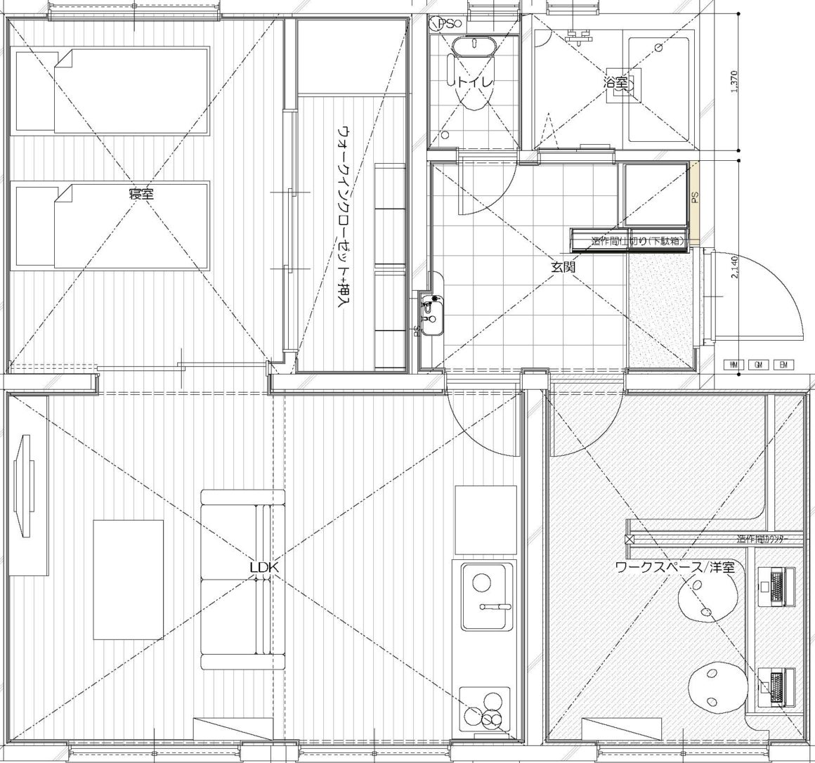
リノベーション面積/54 ㎡ 金額/950万円(税込)
間取り/2LDK 築年数/50年 工期/3ヶ月
設計・施工/株式会社キリガヤ
家族構成(想定)/2人
■BUILDER’S NOTE(ビルダーズノート)
キリガヤが目指すマンションリノベーションは、『シンプルだから使いやすい』『シンプルだからこそ多様性のある空間』そんな空間にきらりと光る『厳選した素材の温かさや輝き』その素材を限られた空間に演出する『職人の技術力』そんなあなただけの『オンリーワンの造作空間』を材木屋ならではの木の見せ方、使い方で演出しています

エントランス
床を下地からつくり直したエントランスは、正面にタイルとスケルトン仕上げのおしゃれな手洗いコーナーを設置しました。奥行きの浅かった下駄箱は斜めに収納することで解消。居室の扉もおしゃれなブルーにしました

居室1(ワーキングルーム)
大きな⽊製の変形カウンターによってテレワークはもちろん、工房・書斎などフレキシブルな活用ができる空間です。他の部屋と仕上げ材を変えることで、気分も『仕事モード』に切り替えてくれます。趣味の空間として落ち着いて作業できる『私だけの工房』としても活躍してくれます


居室2
LDKからつながるブラックチェリーの床板。外周部にはしっかり詰まった断熱材によって快適な寝室空間を演出。ウォークインクローゼットには布団も入る奥行きのある棚板と用途に合わせて形を変えられるウォール収納をつくりました


キッチン:
2人家族を想定してシンプルで使いやすいキッチンに仕上げました。壁面にタイルを採用したことで空間の素敵なアクセントになりました

リビング&ダイニング:
(P8−9ご参照)表情がきれいなブラックチェリーの無垢の床材を張り延ばし、ふた部屋に区切られていた空間をひとつにしてシンプルな空間になりました。これから住まう方の個性があふれる空間になってくれるといいですね

バスルーム
白を基調としたシンプルなユニットバストを採用しています

床材
麻を材料とした「ココザイル」、アマニ油や石灰などの自然素材を混ぜた「リノリウム」、無垢のブラックチェリーと用途に合わせて3種類の床材で仕上げました


<取材協力>
株式会社キリガヤ・リフォーム部
〒249−0002 神奈川県逗子市山の根1−2−35
TEL:046-870-1500 FAX:046-870-1501







