「庭にプール」は夢のような話ですが、じつは高級車ほどの費用で実現すると聞いて検討、導入される方が続出。
「メンテナンスも簡単で、夏だけでなくオールシーズン水辺のリビングのように楽しめます。ランニングコストも月々5,000円程度(参考金額です)ですから」
埼玉県のユーザーの方の声。
「5月の連休頃の暑い時期から利用しています。夜の時間に水辺を眺めるのもいいですよ。住宅を建てるときに同時に導入できて、おしゃれなフランス製のプールを車を購入するように設置できることは驚きでした」

そんなデジョユプールのお得なキャンペーンがスタートします。6×3×1.2m ラダー込みのデジョユプールパッケージの予約が始まりました。
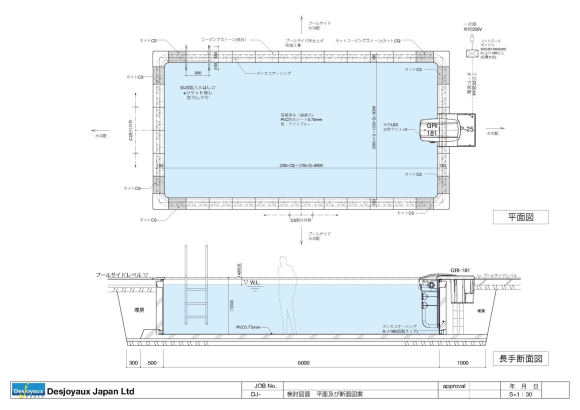
プールの大きさは、6×3×1.2m ラダー込み。輸入品のみとなります。施工費、税、送料別で、200万円 。なお形状(以下の図面通り)は変更不可となります。
なお、キャンペーンは2022年3月ご契約まで。
この機会にいかがでしょうか?

デジョユプールとは?
デジョユ社は、フランスのリヨン郊外に1966年に設立。独自の特許と、それを実現させる自社工場を持つことで、家庭用プールの普及に貢献。これまでに、20万基以上のスイミングプールを世界中に設置し、パリのストックマーケットに上場しているプール専業のトップメーカーです。日本では、2006年にデジョユジャパンが設立され、全国各地でプールのある空間を提案しています。
デジョユプール6つの特徴
- 短工期を実現する躯体
- メンテが容易なパイプレス濾過システム
- 地震に強いシート防水強化PVCシート
- 新規はもちろんリノベーションにも対応
- 包括的な保証制度が充実
- 欧州デザインの豊富なアクセサリー
<取材協力>
<取材協力>
デジョユプールパートナー販売店
株式会社 E.O.L.
東京テクニカルショールーム
144-0051 大田区西蒲田7-18-4-9F
TEL:03-6432-6830 FAX:03-6432-6831
e-mail:info@eol-pool.com







